Wind Mitigation Inspection
Understanding the Wind Mitigation Inspection
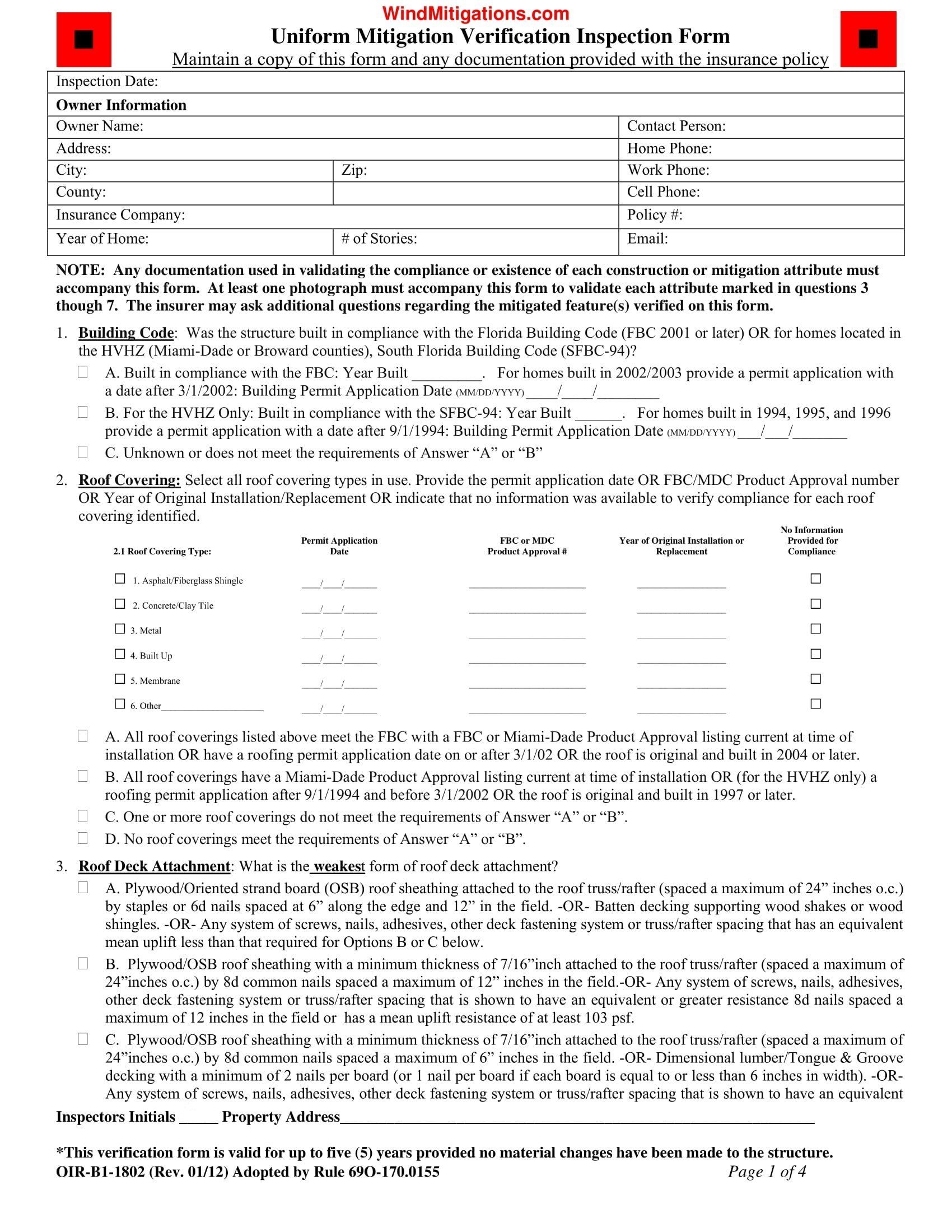
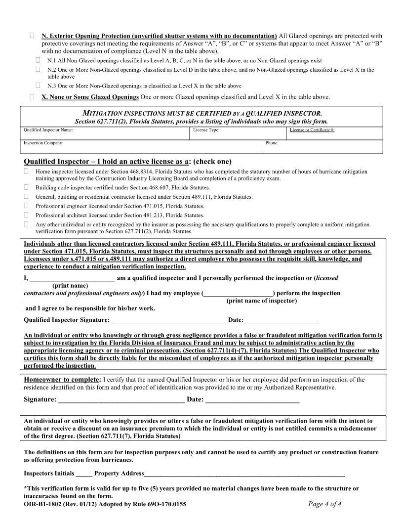
The OIR-B1-1802 or Uniform Mitigation Verification Inspection Form consists of seven specific features that determine how wind resistant your home currently is. Significant discounts are typical if you have never had a wind mitigation inspection performed. The inspection is conducted by a Florida licensed professional that documents a home’s credited features and the ability to resist high wind events and hurricanes.
Features documented include:
- 2001 Building Code Compliance for entire building, homes built after March 1, 2002.
- Last roof permitting with date of the last roof replacement.
- Roof covering and the means of deck attachment.
- Roof to wall connection type.
- Roof geometry.
- Presence of a secondary water resistance. Optional but common with roof replacements today.
- Opening protection type present for glazed openings, solid doors and overhead doors.
Our job is to identify and document the features your property has. The more the credited features present, the lower your homeowner's rates will be for your property. Remember, this is not a "pass or fail" inspection. It does not matter the number of credited features you currently have, having just one or all of the features, you will receive a certain amount of discount. these discounts are applied toward the windstorm portion of your total insurance premium and depending on various factors, this portion can range from a 15-70% credit of the total premium. Premium determination is very complex and continually changing so we encourage you to review your coverages with our licensed agents on an annual basis.
A wind mitigation inspection typically will cost no more than $175 with required color photos in one pdf file. Any printed off wind mitigation reports are acceptable but the preferred method insurance agents will want to properly quote you is by emailing the report. If you do print, they will not accept a report with black and white photos.
**Consult with your insurance agent for current underwriting guidelines for each inspection.






